Ribera Dreams es un proyecto de reforma integral de unos antiguos clientes que cumplieron su sueño de tener una segunda casa que trasmitiese la misma sensación de hogar que su vivienda habitual.


UN TESORO ESCONDIDO
Desde hace algunos años, estos clientes ya formaban parte de nuestra comunidad y siempre habían soñado con tener una casa en el Mar Menor de Murcia, Santiago de la Ribera.
Esta ubicación era perfecta para lo que ellos buscaban, una casa ubicada en un lugar encantador y con unas temperaturas anuales permanentes.
Un día recibimos la llamada que tanto esperábamos: ¡Habían encontrado una casa! La vivienda se encontraba en malas condiciones “me recuerda a una casa antigua de pueblo, pero tiene un tesoro escondido” decían.
ESTUDIO Y ELABORACIÓN
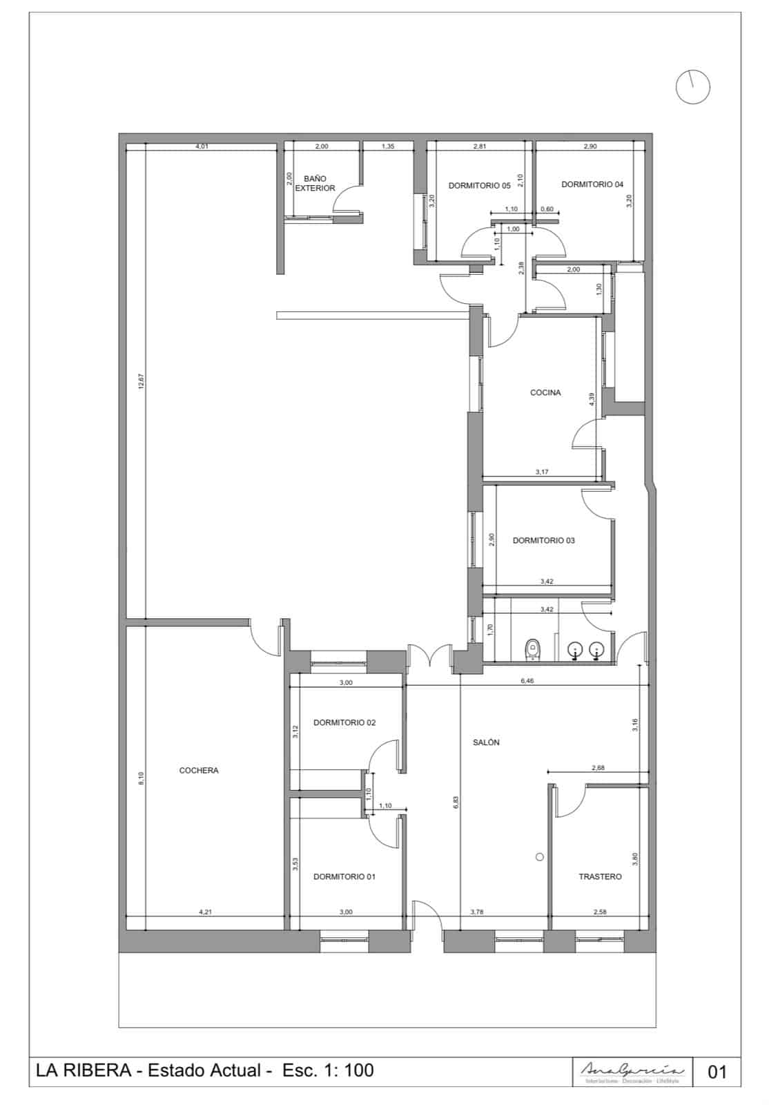
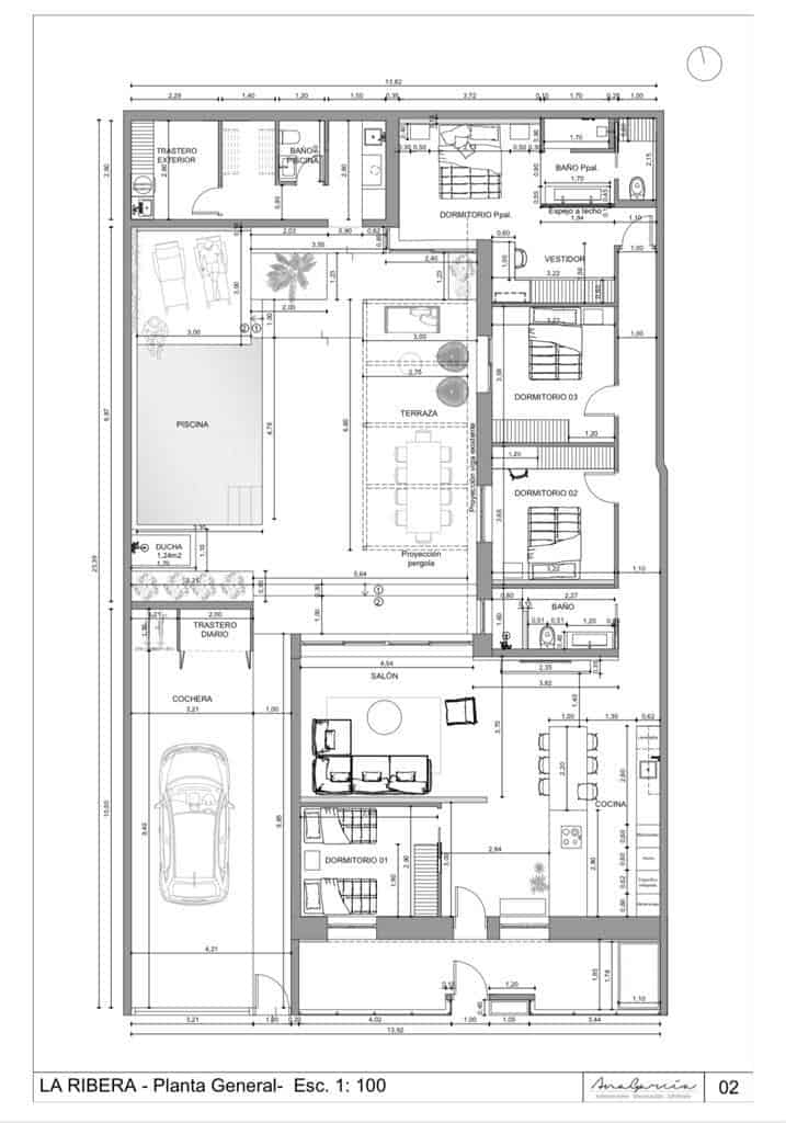
Había llegado el momento, nuestro equipo se puso manos a la obra, estudiamos los planos y trabajamos en la distribución de ésta para poder adaptarla a las necesidades que ellos tenían.
En ese proceso descubrimos aquel patio de interior abierto, fue el momento en el que supimos todo el jugo que se le podía sacar a esa vivienda.
Este domicilio se iba a convertir en su segunda vivienda, pero no iba con intenciones de crear una casa para veranear, sino un rinconcito que disponga de las mismas o incluso más comodidades de las que tiene su vivienda habitual.






LA TRANQUILIDAD DE UN HOGAR
Trabajando en el estudio de materiales y texturas, conseguimos darles el toque que ellos buscaban, una personalidad muy mediterránea y con un estilo “Formentera”, donde la estética y el diseño se encuentran sumergidos por la playa.
Finalmente, se le enseñó la propuesta de su proyecto en 3D para poder visualizar como iba a quedar la vivienda antes de iniciar la obra.
Estos clientes son personas muy cercanas, lo que les lleva a hacer reuniones familiares y con amigos en casa de forma habitual. Por ello, el gran enfoque de este proyecto se centra en la zona de día, creada con materiales actuales y de primera calidad.


Por otro lado, hay que destacar que el techo de la cocina es de madera para poder acotarla del resto de la casa y lograr crear en el espectador, una diferencia visual con el resto de las estancias de la casa. También, se ha hecho uso de suelo porcelánico, empleado tanto en el exterior de la vivienda como en el interior, logrando dar una sensación de continuidad. Este suelo es una imitación al micro cemento, un material muy famoso en nuestras islas.

PARED CON ESTILO BALEAR
Destacando la pared de mampostería con piedra de bolo natural colocada una a una para crear un muro propio de las Baleares. A diferencia de la pared panelada, ubicada en la zona de día que integra y oculta la puerta del dormitorio de invitados, para evitar la confrontación con este dormitorio nada más entrar a la vivienda.


RINCONES DE DESCANSO
El proyecto Ribera consta de 4 dormitorios, uno en suite con tonos más crema, uno de invitados con dos camas individuales y, dos estándares que tienen un baño en común.
Uno de los dormitorios estándares está ambientado en un estilo más de playa, por lo que hemos posicionado elementos más marinos y con tonos azules en: colchas, cojines, elementos movibles que puedan ser sustituidos en cualquier momento.
Por otro lado, el otro dormitorio consta de un estilo más ambientado en “pinterest” para la cual le enseñamos varias propuestas y una de ellas fue elegida con éxito.




Proyecto Ribera se ha creado a medida por lo que es catalogado como una reforma integral. ¿Tienes algún proyecto en mente? Cuéntanoslo, te ayudamos a crearlo.
Aquí te dejamos las imágenes de todo nuestro proyecto.
Zona de día









Dormitorios







Baño de invitados


Suite principal





Imágenes de detalles







