Seguro que en casa hay alguna estancia con la que no estás a gusto, que necesita un cambio de aire o que te gustaría que tuviera un estilo concreto, pero no sabes cómo conseguirlo.
Ese fue el caso de Cristina su sueño de tener una villa encantadora con uno de nuestros best Seller Online, el salón diseñado por la firma Ana Interiorista.
Un sueño que se materializó en el Proyecto Granada gracias a nuestro plan 180º, la solución perfecta si quieres decorar una estancia desde cero o si te gustaría conseguir en ese espacio un ambiente específico.
¿En qué consiste el Plan 180º?
Como hemos comentado, el Plan 180º es un servicio que ofrece la firma Ana Interiorista para ayudarte a amueblar una estancia partiendo desde cero y conseguir el estilo que estás buscando.
Tras una entrevista conmigo, telefónica o por correo, en la que me podrás explicar detalladamente qué es lo que quieres y cuáles son las necesidades que ese espacio debe cubrir, procederemos a trabajar juntos para hacer realidad la idea que tienes en mente.
¿Qué es necesario para el Plan 180º?
Después de la primera toma de contacto, será necesario que me facilites por correo electrónico la siguiente documentación para poder comenzar con el estudio del proyecto:
- Fotos de la estancia a amueblar.
- Plano con las medidas del espacio, bastará con un dibujo hecho a mano.
- Presupuesto estimado.
- Un breve resumen donde se detalle el estilo que se quiere conseguir, gustos y necesidades.
¿Qué vas a recibir con el Plan 180º?
Con toda la información recibida, procederemos a realizar un estudio de tu propuesta y a elaborar toda la documentación para conseguir hacer realidad tu proyecto.
Esta documentación consta de tres partes, como veremos a continuación.
1. Infografías 3D
Comenzaremos tu proyecto con la elaboración de una serie de infografías 3D, para que puedas previsualizar cómo quedará tu estancia.
En este punto del proceso, trabajaremos juntos y tendrás total libertad para efectuar todos los cambios que quieras hasta lograr la estética que deseas para esa estancia.


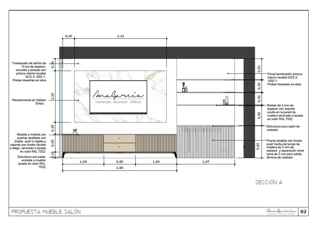
2. Planos Técnicos de detalle
Una vez estés conforme con el diseño planteado para tu espacio, procederemos a realizar los planos técnicos del proyecto.

Documentación que te facilitaremos en PDF, donde también se incluye toda la información necesaria para los distintos profesionales implicados en el proyecto, como carpinteros, constructores o pintores, para que estos oficios puedan ejecutar los diseños personalizados.
Gracias a la toda la información detallada en los planos técnicos, donde se incluyen medidas y materiales necesarios para cada diseño, podrás solicitar presupuesto a diferentes profesionales y elegir el que mejor se adapte a tus necesidades.

3. Dossier final
Cuando todo el proyecto esté definido, se te hará entrega de un dossier más extenso con toda la información de tu plan personalizado, incluyendo las infografías 3D, planos técnicos detalle, referencias de pintura y shopping list.
Shopping List
Este documento es la lista de compra detallada, en la que se incluye todo el mobiliario que aparece en las infografías 3D para que el resultado final sea exactamente el mismo que hemos diseñado basándonos en tus gustos y necesidades.
Un listado en el que se incluye la referencia de cada artículo y el link de compra, para que, de una forma muy sencilla, puedas adquirir todos los productos.



¿Te gustaría que le diéramos un cambio de 180º a tu hogar? Cuéntanos qué necesitas y comenzaremos a diseñar tu plan personalizado.
