El proyecto Aguadulce surgió tras una conversación a distancia, de esas en las que se pasa el tiempo sin darnos cuenta, una hora agradable, cercana e interesante, en la que la calidez se conjuga con las líneas rectas, las maderas y los grises. Así es la Asesoría Express en Ana García Interiorista. Una hora cercana descubriendo la esencia de quien llama a nuestra puerta.
Nos adentramos en el asesoramiento de lo que, en principio, se limitaba a colores de puertas, de suelos, al tipo de materiales y los alicatados, necesarios para lograr la armonía en un ambiente de estilo contemporáneo pero a su vez profundamente cálido.
Tras el resultado (me encantan estos momentos) nuestra clienta dio un paso más allá y, lo que había comenzado como un asesoramiento express se convirtió en un Plan 180º poniéndonos manos a la obra con la decoración integral del salón; desde el color de las paredes, la iluminación a todo el mobiliario y accesorios.
En sintonía
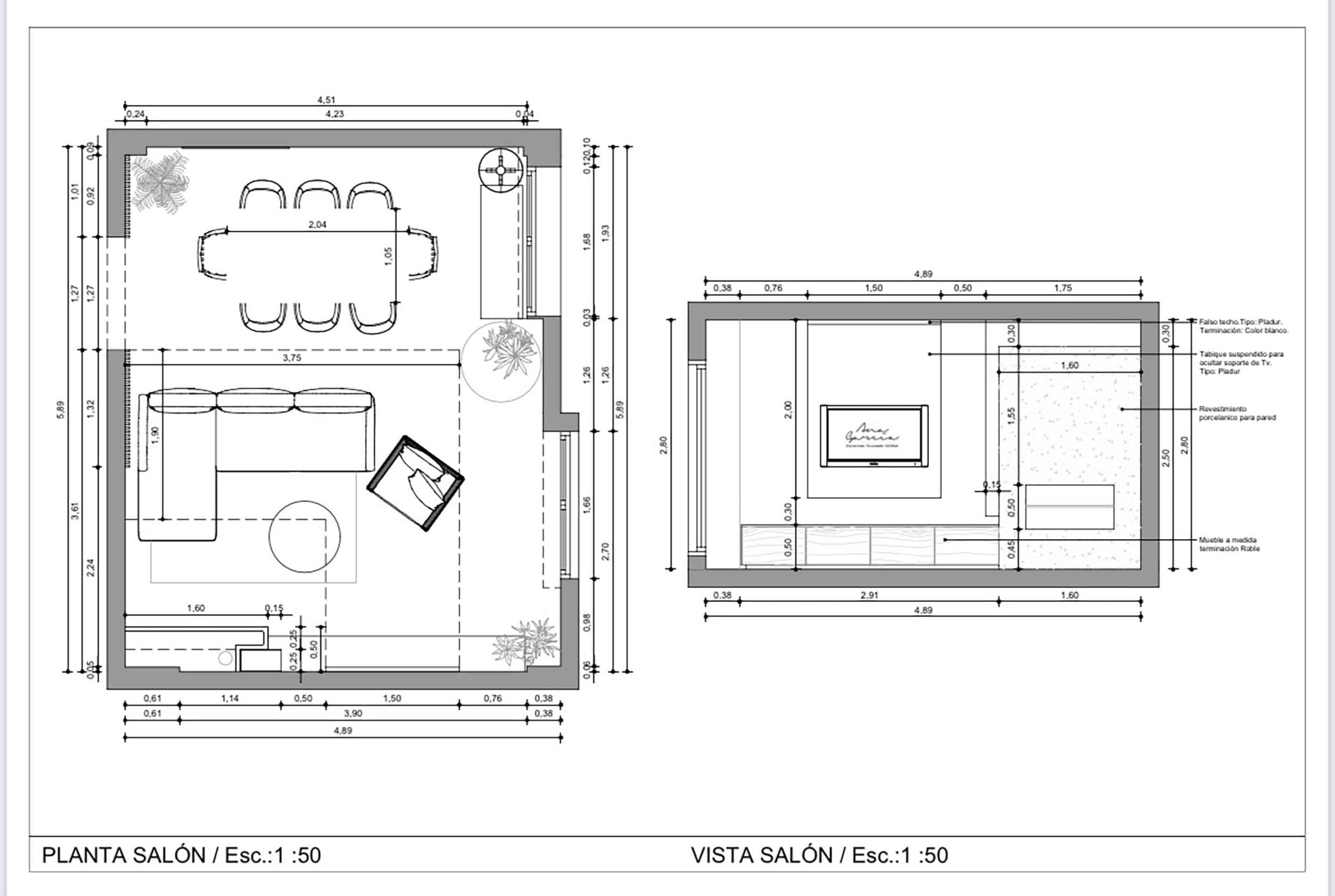
La comunicación con todo el equipo responsable del buen resultado del proyecto es fundamental. Para conseguir una comunicación fluida y eficaz enviamos cada detalle especificado en los planos. El carpintero no tuvo ninguna duda en cuanto al Pladur ni a la hora de realizar toda la carpintería.
Igualmente el electricista, quien captó a la perfección los puntos de luz exactos y sus porqués. Todos los oficios pudieron trabajar con eficacia y, entre todos, lograr que el Proyecto Aguadulce fuera todo un éxito.
Entre proporciones
Nuestra clienta tenía muy claro que quería una estética contemporánea, con una línea moderna y tonos oscuros. Los grises y los negros aportan un ambiente sólido y sobrio; al ser una familia con niños pequeños buscamos suavizar la sobriedad y aportar calidez con las maderas creando un ambiente orgánico.
Para lograr este tipo de ambientes es muy importante que exista una proporción equilibrada. En este caso predominan los blancos seguidos de los grises y de la madera creando el equilibrio perfecto entre las líneas puras y contemporáneas con la calidez de la madera.
Las líneas rectas y puras se conjugan perfectamente con el paso del tiempo. Para el proyecto Aguadulce quisimos que esas líneas fueran a medida, casi rozando la perfección. Tanto los muebles como los listones de madera fueron hechos a medida. Los listones no pasan desapercibidos, ¡a mi me encantan! Cuéntame qué te parecen.
Espacios iluminados
En muchas ocasiones os he hablado sobre la importancia de la iluminación. Un proyecto de iluminación mal gestionado puede arruinar hasta el más bonito de los proyectos.
En el caso del comedor tuvimos la suerte de contar con mucha luz natural. Incorporamos una lámpara de techo con luz neutra aportando el equilibrio para crear un ambiente en total armonía.
Los resultados del Plan180º del salón no pudieron ir mejor. Fue muy acertado y les encantó desde el principio. No hicieron ningún cambio y, no solo eso, sino que dieron un paso más: contrataron otro Proyecto 180º para una estancia muy importante, el dormitorio.
Dos estancias, un proyecto.
A los pocos días de haber culminado el Plan 180º del salón nuestra clienta nos contactó para continuar con la misma línea de estilos en su dormitorio. Mantuvimos los listones y el mismo color de la madera. Logramos una estancia de líneas puras con la presencia de blancos generando serenidad e invitando a la relajación y al descanso.
Con la madera aportamos calidez, no hay un material que la transmita de forma tan auténtica. Con el dormitorio Aguadulce quisimos transmitir la paz y la calma que sentimos cuando estamos en contacto con la naturaleza. Una vez más encontramos el equilibrio perfecto entre grises, blancos y tostados.
En el dormitorio Aguadulce cuidamos cada detalle y pusimos tanto mimo que quisimos dedicar un post solo para el. Entre sueños de Aguadulce
Calor de hogar
Con este proyecto tuvimos la suerte de que nos dieran carta libre para crear, es todo un privilegio, sobre todo cuando todas las propuestas son aceptadas. A este tipo de proyectos no me gusta llamarles “trabajo” porque son una auténtica gozada; son un disfrute de principio a fin.
Uno de nuestros aciertos fue la chimenea de pellet, uno de los elementos clave para suavizar el estilo contemporáneo. El porcelánico que recubre toda la estructura de la chimenea es de Porcelanosa, objeto de todas las miradas. Para terminar, quisimos dar un toque rústico en la decoración lateral de la chimenea con los troncos de madera que nos transporta a una noche fría con calor de hogar.
Con este proyecto tuve la sensación de que todo fluyó con naturalidad, a su ritmo y en su momento exacto. Estoy muy agradecida porque lo que empezó con un asesoramiento se convirtió en un proyecto con calidez de Aguadulce.
Por último y no menos importante, quiero dar infinitas gracias a Adam García, responsable de la fotografía de este proyecto
¡Hasta pronto!
Ana.




































